Tacoma William W. Philip Hall JTR Student Commons

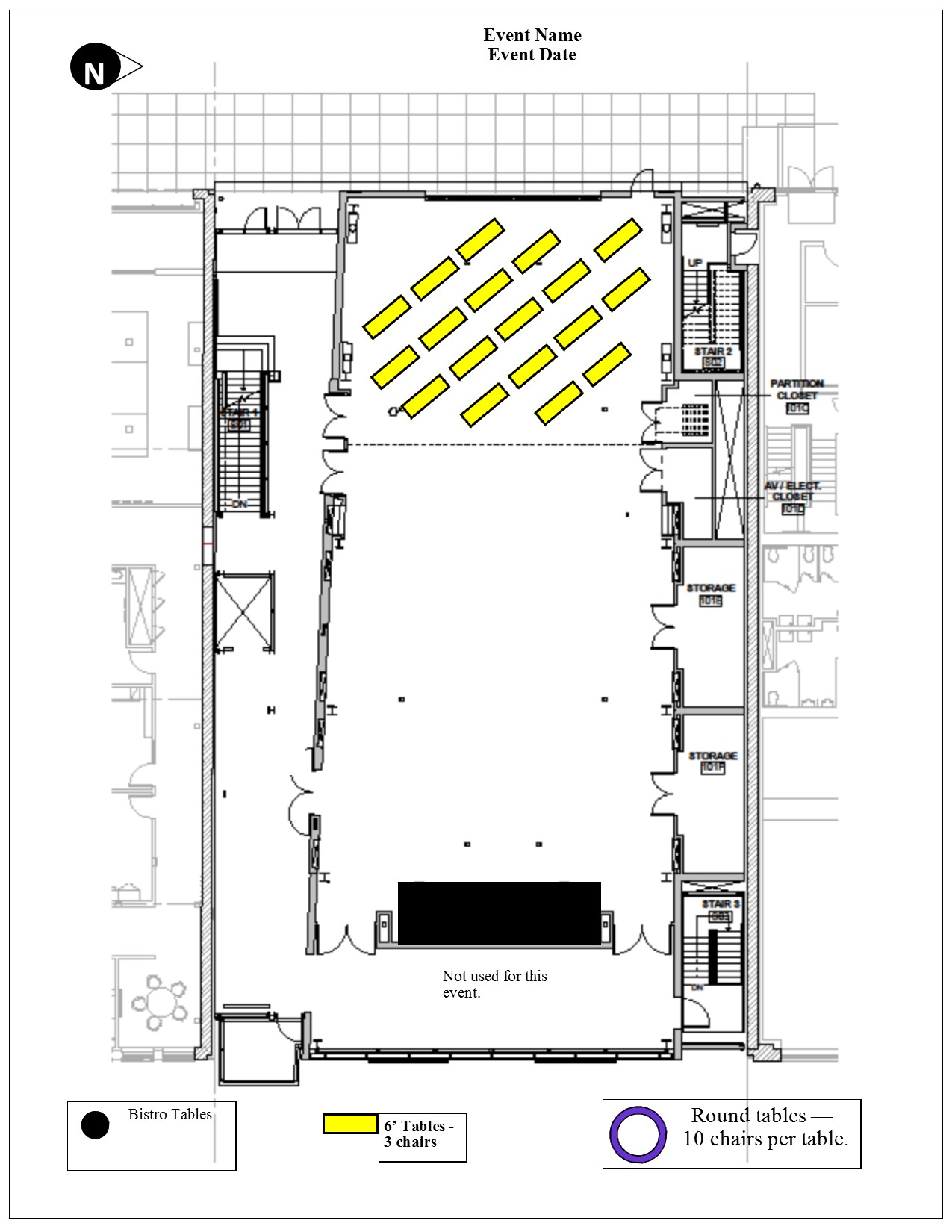
WPH JTR STUDENT COMMONS: Capacity 150

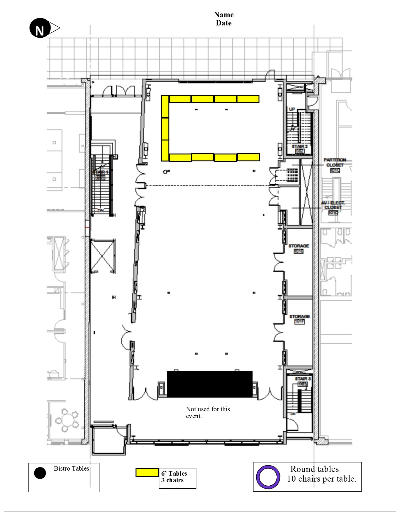
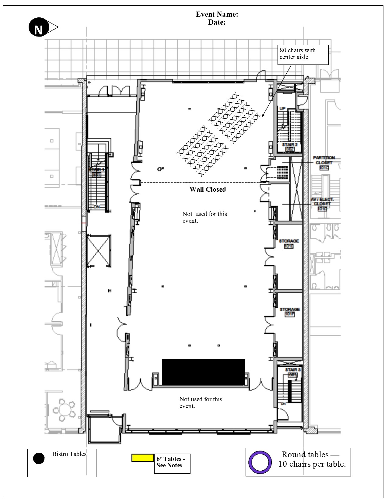
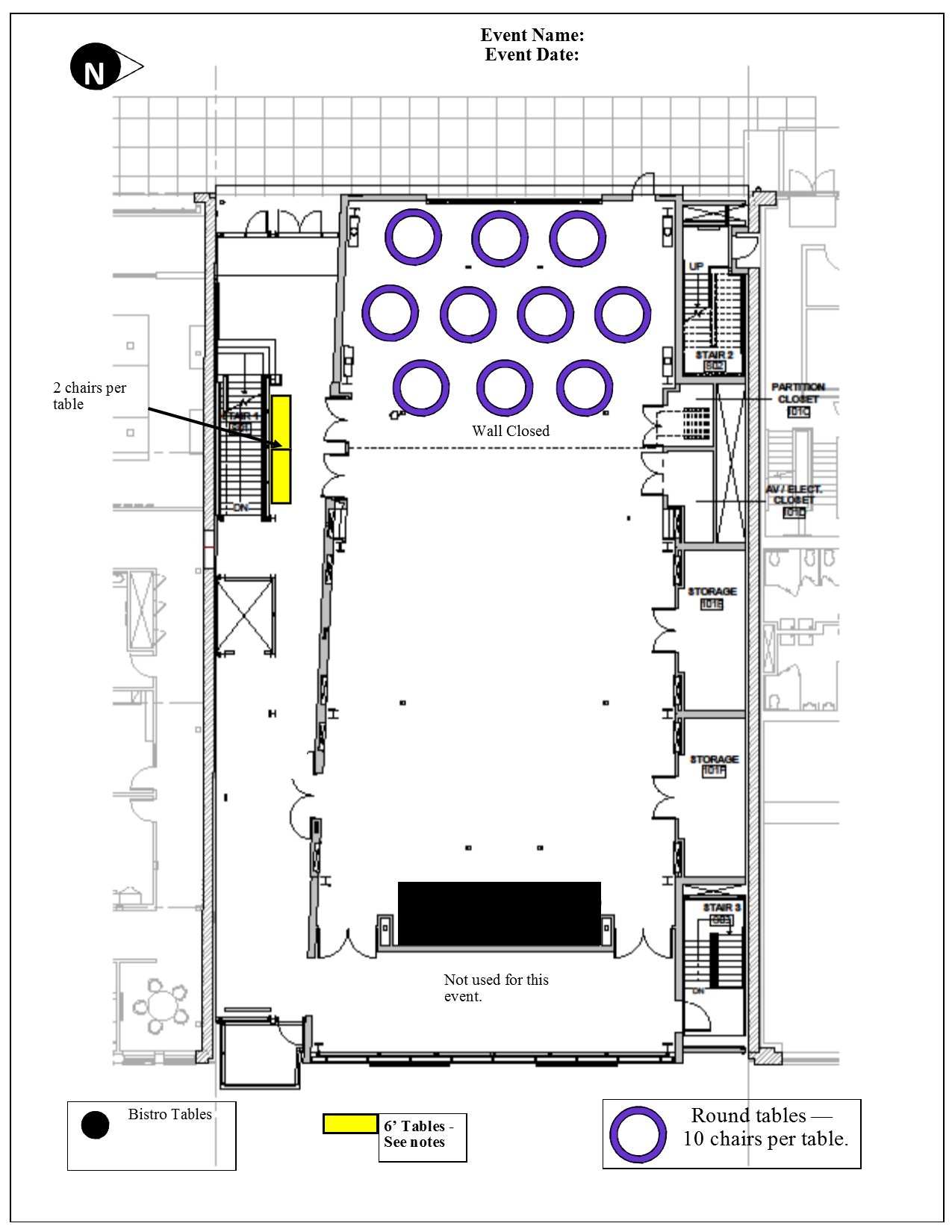
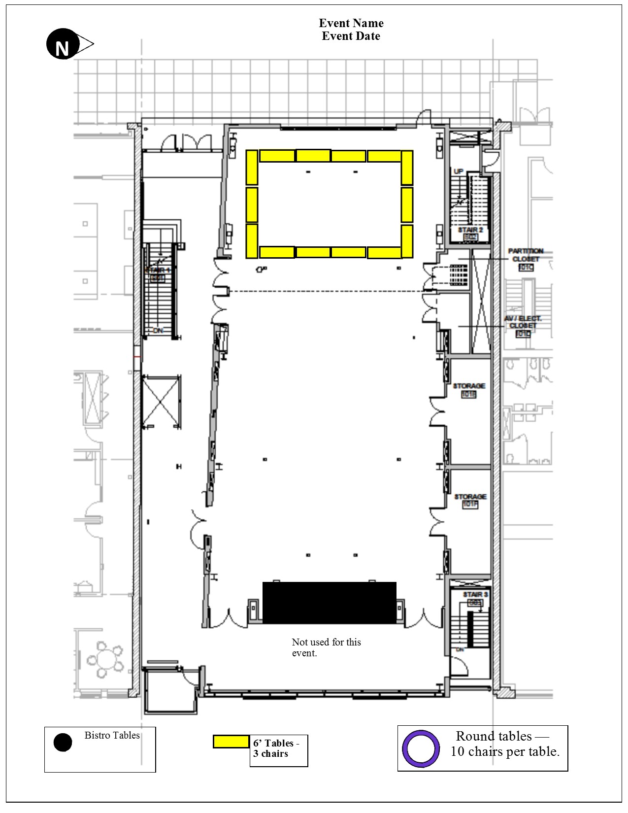
The Jane Thompson Russell Student Commons is located in the William W. Philip Hall and offers a flexible event space that can accommodate lectures, meetings, performances, dinners or fairs. This space is the smaller portion of the main event space and features the sliding glass doors that give access to the Gilenwater Plaza. Should you want to book the main event space, please look at the MAR/JTR option or WPH All Four. Setups: For questions about your event setup, please reach out to: uwtsetup@uw.edu Attached Files: Remember to upload your diagram and your Event Management Safety Agreement Form (EMSA) in your 25Live Reservation using the "Attach File" button! EMSA Forms can be found here: https://www.tacoma.uw.edu/sites/default/files/sections/UUF/EMSA_91319.pdf

Features